Villa singola in vendita

Rho, Via Monte Nero
€ 300.000
3 locali 3 locali
113 Mq 113 Mq
1 bagno 1 bagno

Villa singola in vendita

Rho, Via Monte Nero

Descrizione annuncio

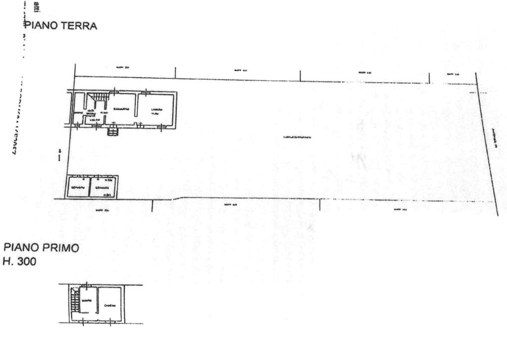
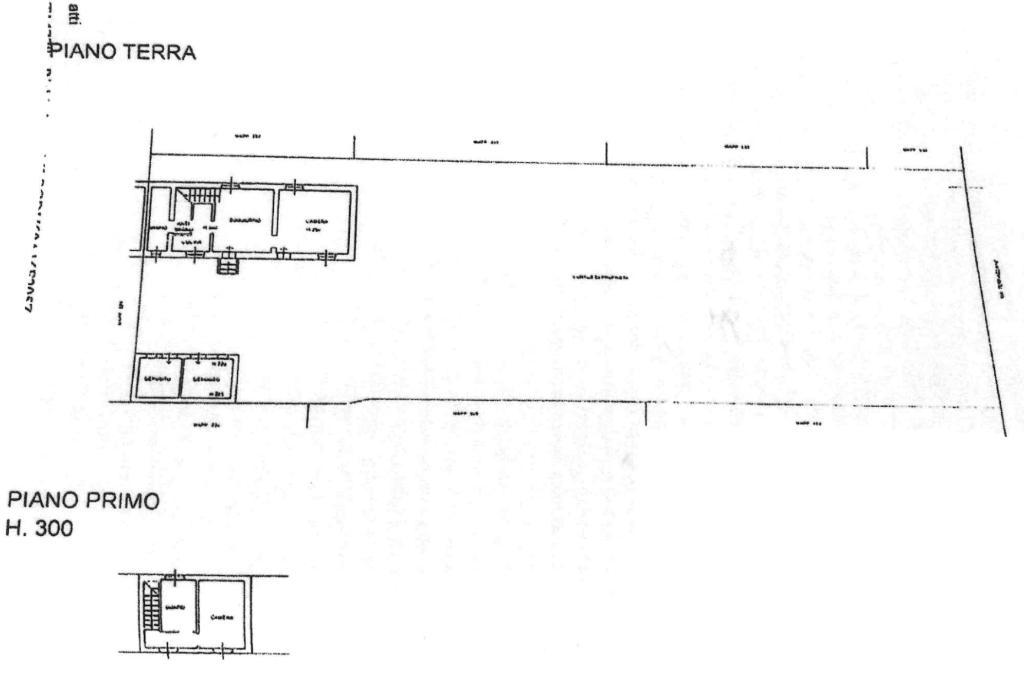
RHO S. PIETRO, proponiamo villa singola di 113 mq, ideale per chi cerca una soluzione abitativa su più livelli.

La proprietà, costruita nel 1970, offre un ambiente accogliente e funzionale. Al suo interno, la villa dispone di tre locali così composti: al piano terra l'ingresso è direttamente nel soggiorno, il cucinotto finestrato e il bagno finestrato completo di sanitari e doccia.

Tramite una comoda scala interna si accede al piano superiore dove troviamo la camera matrimoniale e uno studiolo.

La disposizione degli spazi è pensata per garantire comfort e praticità.

All'esterno, un giardino privato di mq 650 che circonda la casa, offrendo uno spazio verde per momenti di relax o attività all'aperto.

Inoltre l'immobile dispone di due depositi/lavanderia.

Completa la proprietà un posto auto, che aggiunge comodità per il parcheggio.

Questa villa rappresenta un'opportunità interessante per chi desidera vivere in una zona tranquilla, senza rinunciare alla vicinanza ai servizi e alle comodità offerte dal comune di Rho.

Mostra tutto

Nelle vicinanze

Trasporto pubblico Trasporto pubblico
Rho
Rho
1,4 Km
Via Terrazzano - Via Montenero (Rho)
Via Terrazzano - Via Montenero (Rho)
40 m
Via Terrazzano - Via dei Ronchi (Rho)
Via Terrazzano - Via dei Ronchi (Rho)
70 m
Ricariche auto elettriche Ricariche auto elettriche
Rho Parcheggio delle Poste
870 m
Rho Comune
1,2 Km
Eneldrive Volta
1,7 Km
Rho Biblioteca Comunale
1,9 Km
Distributore Q8
2,4 Km
Scuole Scuole
I.P.S.I.A. Puecher-Olivetti
220 m
Scuole
300 m
Scuola Secondaria di Primo Grado di Via Terrazzano
460 m
Liceo Scientifico Statale "Ettore Majorana"
840 m
Istituto superiore Olivetti
890 m
Farmacia Farmacia
Farmacia Chiaudani
910 m
Farmacia Meazza
1,1 Km
Farmacia San Vittore
1,1 Km
Parafarmacia Salute
1,2 Km
Farmacia Comunale #1
1,3 Km
Ospedali Ospedali
Ospedale di Circolo - Rho
1,4 Km
Ospedale "Giuseppe Casati"
1,5 Km
Supermercati Supermercati
Carrefour Market
810 m
Eurospin
1,2 Km
Il Gigante
1,5 Km
U2 supermercato
1,8 Km
Leader Price
2,0 Km
Negozi Negozi
Ciao Moda
950 m
Carrefour Express
970 m
Hoop
1,0 Km
Half
1,0 Km
Il Pane di Mario e Maria
1,0 Km
Bar Bar
Bar
530 m
Al santuario
1,1 Km
Bar Stazione
1,4 Km
Bar Simplon
1,5 Km
Rock n Roll
1,9 Km
Ristoranti Ristoranti
Il Vicolo
1,0 Km
Ristorante Pizzeria Hippocampus
1,0 Km
Voglia di Sushi
1,0 Km
Bistrot Al 7
1,1 Km
La Corona d'Oro
1,1 Km
Mostra tutto

Caratteristiche

Rif.:
61062131
Piano:
Su più livelli di 2
Totale piani:
2
Posti auto:
1
Camere da letto:
2
Arredamento:
Assente
Mostra tutto
Prezzo Prezzo
€ 300.000
Rata mutuo Rata mutuo
€ 1.387 / mese
Spese annue Spese annue
€ 0
Proponi il tuo prezzoProponi il tuo prezzo

Classe Energetica

G
G
G
G
G
G
G
G
G
EP globale non rinnovabile:
352.45 kW h/m² anno
EP globale rinnovabile:
0.00 kW h/m² anno
EP invernale del fabbricato:
EP estiva del fabbricato:
Anno di costruzione:
1970
Riscaldamento:
Autonomo
Tipo impianto:
A radiatori
Tipo alimentazione:
Metano

Ti interessa visionare l'immobile?

Fissa un appuntamento  Fissa un appuntamento

Richiedi informazioni

* Questi campi sono obbligatori

Calcola il tuo mutuo

Semplice e senza impegno
Anticipo

( % )
Mutuo

( % )

pochi semplici passi

inserisci i tuoi dati
Questionario completato
Grazie per aver richiesto un appuntamento senza impegno con un nostro Consulente del Credito e Assicurativo.

Hai inserito correttamente tutti i dati necessari e a breve riceverai una e-mail con un link da convalidare per inviare i tuoi dati.
Affiliato
Studio Arte Srl
Via Pace, 4 20017 Rho (MI)
Via Pace, 4 20017 Rho (MI)
Zona: Rho - Mazzo - Fiera
Mostra su mappa
Orari: aperto da lunedì a venerdì dalle ore 9:00 alle ore 12:30 e dalle 14:30 alle 20:30; sabato dalle ore 9:00 alle 18:00
Affiliato
Studio Arte Srl
Via Pace, 4 20017 Rho (MI)

2025 Tecnocasa Franchising S.p.A. - P. IVA 08365160152 - Via Monte Bianco 60/A 20089 Rozzano (MI). Ogni agenzia ha un proprio titolare ed è autonoma. Privacy policy | Policy utilizzo | Cookie policy